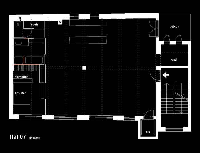
Flat 07
Standort: 1150 Wien, Hackengasse 10
Bauherr: privat
Jahr: 2002
Statik: Gerald Gallasch
Foto: Maria Ziegelböck
Wohnen
ABdomen Architektur
Projekte
Shop / Interieur
Gewerbe
Stadt
Kunst
Mixed Use
ABdomen
Profil
Team
Publikationen / Ausstellungen
Impressum
Kontakt
2 / 4
<
>